
March 26, 2026
— Jeff Ward, Lehigh Valley News Briefs
Bethlehem’s Zoning Hearing Board is due to hear three appeals on Wednesday, April 8.
Three townhouses are proposed for 1800 and 1804 Calypso Ave. on the west side of the city.
David Ronca, on behalf of Macada Partners, seeks to combine the two lots and place three townhouses on the resulting 25,500-square-foot property. The application says there are multi-family dwellings nearby, and that developing the existing properties into single-family homes would be challenging for several reasons, including a lack of individual sewer service at each lot.
There would be at least two parking spaces per home, according to the Macada Partners’ application.
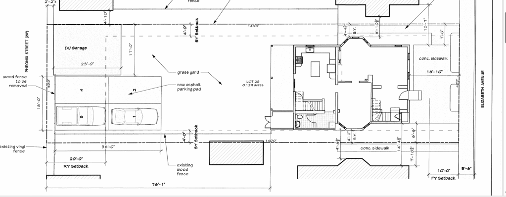
At 28 W. Elizabeth Ave., Gilbert Bouhana seeks variances, including one for “stacked parking,” as part of a plan to convert a single-family home into a two-family residence. Stacked parking means each residence would have two spots in line, so somebody would get parked in if two cars were parked.

The board will also hear a plan to add to 506 Jackson St., a 640-square-foot home. The owner seeks to add to a “bump-out” on the house, for an extra 9 to 12 square feet on both floors.
The Bethlehem Zoning Hearing Board will meet at 6 p.m. on Wednesday, April 8, in Town Hall.
Here is a link to the agenda and below is a cut-and-paste version:
CITY OF BETHLEHEM, PENNSYLVANIA
ZONING HEARING BOARD – PUBLIC HEARING
City Hall Rotunda
10 E. Church Street, Bethlehem PA
Wednesday, April 8, 2026 @ 6:00 PM
The Meeting will be livestreamed for viewing purposes only on:
https://www.youtube.com/channel/UC4HYHr4C6mVbfhRXhWYXaJw
Applications can be viewed at:
https://www.bethlehem-pa.gov/calendar-planning-zoning, or in Bethlehem City Hall.
Notice is hereby given that the Zoning Hearing Board will have a meeting for the purpose of
hearing the following appeals:
1.) 28 West Elizabeth Avenue
(CID # 214-015097) (PID # N6SE4A 10 19 0204)
Appeal of Gilbert Bouhana for a special exception, dimensional variances (lot area: 5600 SF
proposed, 6000 SF required; lot area per dwelling: 2800 SF proposed, 3000 SF required; lot
width: 40’ proposed, 60’ required; existing habitable space: 2960 SF proposed, 3000 SF
required) and a parking variance to allow stacked parking, to permit a Conversion of an existing
single family detached dwelling to a two family detached dwelling. (Sections 1302.40,
1304.01(b)(1), 1319.03(b), 1322.03(o), 1325.06, 1325.07 and all associated variances, special
exceptions, and interpretations).
Tract Size: 5,600 SF (.1286 AC)
40’ x 140’
2,) 506 Jackson Street
RT-High Density Residential
Zoning District
(CID #204-002364) (PID # P6SE2D 9 19A 0204)
Appeal of Jeffrey Frederick for a dimensional variance to permit an in-fill addition to a non
conforming (residential) structure. Side yard setback: 3’ required, less than 1’ proposed.
(Sections 1302.92, 1304.01(1), 1323.04(d)(5), 1325.07 and all associated variances, special
exceptions, and interpretations).
Tract Size:29,652 SF (.6807 AC) 139.92 x 211.9 (irregular)
3.) 1800 Calypso Avenue
RT-High Density Residential
Zoning District
(CID# 113-009469) (PID# 641787816084 1)
1804 Calypso Avenue
(CID# 113-009468) (PID# 641787717043 1)
Appeal of David Ronca on behalf of Macada Partners 1800 Calypso LLC for a use variance to
construct 3 sets of Single Family Semi-Detached Dwelling units (also known as Twin
Dwellings) in the RS (Single Family) zoning district, and an interpretation to determine if the
setbacks referenced in 1306.01(a)(2) as required by 1306.07 are applicable, and if so applicant
seeks a dimensional variance proposing 10’ side yard setbacks. (Sections 1302.40, 1303.07(c),
1304.01(b)(1), 1306.01(a)2, 1306.07, 1325.06 and all associated variances, special exceptions,
and interpretations).
Tract Size:
25,200 SF (0.0216 AC)
140’ x 180’
David W. Taylor
Zoning Officer
Bureau of Planning and Zoning