
Feb. 9, 2026
— Jeff Ward, Lehigh Valley News Briefs
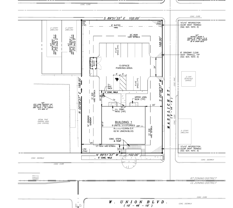
The Bethlehem Planning Commission will take another look Thursday at a proposal to demolish a building on West Union Boulevard and put up eight apartments.
The development on Nicholas Bozakis’s property on 62 – 68 W. Union Blvd. was up for consideration last month, but the commission found that plans submitted were inadequate.
The plan posted on the city website for Thursday’s meetings is for a 3.5-story, eight-unit building at the corner of West Union Boulevard and Masslich Street.
The developer proposes 13 parking spaces and a bicycle rack.

Six of the units would be two-bedroom apartments, with two more single units.
The Bethlehem Planning Commission will meet at 5 p.m. on Thursday, Feb. 12, in Town Hall. Here is a link to the agenda and below is a cut-and-paste version. The meeting will also be shown on the city’s YouTube channel.
Agendas are subject to change. Check the city website closer to the date of the event.
AGENDA
PLANNING COMMISSION
Thursday, February 12, 2026 @ 5:00 pm
Town Hall
10 E. Church Street, Bethlehem PA
The Meeting will be livestreamed for viewing purposes only on:
https://www.youtube.com/channel/UC4HYHr4C6mVbfhRXhWYXaJw
Applications can be viewed at:
https://www.bethlehem-pa.gov/calendar-planning-zoning, or in Bethlehem City Hall.
- APPROVAL OF MINUTES – January 8, 2026
(25-008 LD) – 25090001– 62-68 WEST UNION BOULEVARD – LAND DEVELOPMENT PLAN –
Ward 8, Zoned RT, Plan dated August 18, 2025, last revised October 31, 2025.
The Applicant proposes to demolish the single-family detached dwelling (68 W Union Blvd, and 62 W
Union Blvd has since been demolished) and construct a three-story multi-family (apartments) structure
containing eight dwelling units; thirteen off-street parking spaces, with vehicle ingress and egress from
Masslich Street; a dumpster pad and enclosure located at the rear of the parking lot; utilities, landscaping
and other site appurtenances.- GENERAL DISCUSSION ITEMS